ОПТИМА House

Закрытый коттеджный посёлок Комфорт класса

Скачать прайс

Открыт предзаказ и бронирование

СТОИМОСТЬ:

от 10 000 000 ₽

ОБЩАЯ ПЛОЩАДЬ:

130 м2

ЗЕМЕЛЬНЫЙ УЧАСТОК:

5 соток

РАСПОЛОЖЕНИЕ:

Азовский р-н, с.Пешково, ул.Калинина, 31

Стоимость в себя включает:

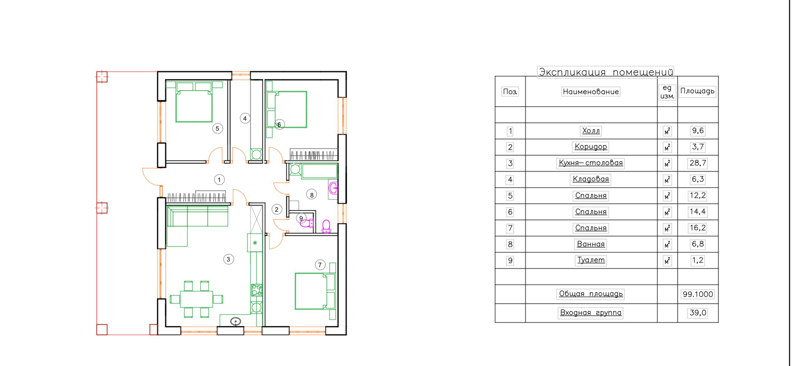
Общая площадь 130 м2

Земельный участок 5 соток

Фундамент: Ленточный (бетон м 350 арматура 14мм)

Стены: газобетонный блок Усть-Лабинский завод 300 мм с армированием каждого 3-го ряда кладки;

Обложен кирпичом ручной фармовки на белый шов с армированием каждого 12 ряда;

Стены дома подготовленны штукатурной смесью под поклейку обоев.

Перекрытие: деревянное по балкам с утеплением в 4 слоя

Высота потолка в черновом виде: от 315 см до 550 см.

Кровля: металлочерепица, мягкая кровля и натуральная черепица.

Окна: энергосберегающие металлопластиковый профиль 70 мм двойное остекление.

Планировка: 1-ый этаж: прихожая, коридор, санузел, 3 спальни, техническое помещение, кухня-гостиная с выходом на крытую террасу.

Газовый котел, водяной теплый пол, батареи и тёплый пол в спальных комнатах.

Газ введен в дом.

Центральный водопровод (ввод в дом и разводка по точкам).

15 кВт (ввод в дом и разводка по точкам).

Переливной бетонный септик.

Забор по периметру и фасаду участка.

Affordable
Cost
Quality
of Work

Bring to the table win-win survival strategies to ensure proactive domination. At the end of the day, going forward, a new normal that has evolved from generation X is on the

Bring to the table win-win survival strategies to ensure proactive domination. At the end of the day, going forward, a new normal that has evolved from generation X is on the

Bring to the table win-win survival strategies to ensure proactive domination. At the end of the day, going forward, a new normal that has evolved from generation X is on the

Хотите узнать текущую стоимость?

ПН.-СБ. / 9:00-18:00 +7 977 0 131 131

    Нажимая на кнопку "Отправить", вы принимаете наши Политику Конфиденциальности и даете согласие на обработку персональных данных.

    ОБРАТНАЯ СВЯЗЬ

    Свяжитесь с нами

    Если вам нужна дополнительная информация, позвоните сегодня и проконсультируйтесь с одним из наших специалистов. Он ответит на все ваши вопросы и организует всё необходимое.

    Есть вопросы?

    +797 701 31 1 31

    1.5k Вопросов по предзаказу

    Power energies

    Lorem ipsum is simply free text used by copytyping refreshing. Neque porro est qui dolorem ipsum quia quaed inventore veritatis et quasi architecto beatae vitae dicta sunt explicabo. Aelltes port lacus quis enim var sed efficitur turpis gilla sed sit amet finibus eros.

    Ut enim ad minima veniam, quis nostrum exercitationem ullam corporis suscipit laboriosam, nisi ut aliquid ex ea commodi consequatur. Quis autem vel eum iure reprehenderit qui.

    Where can I get some?

    СТОИМОСТЬ:

    от 9 000 000 ₽

    ОБЩАЯ ПЛОЩАДЬ:

    103 м2

    ЗЕМЕЛЬНЫЙ УЧАСТОК:

    5 соток

    РАСПОЛОЖЕНИЕ:

    Азовский р-н, с.Пешково, ул.Калинина, 31

    Оставьте заявку на персональное предложение

    Заполните форму, мы свяжемся с вами в ближайшее время

      Нажимая на кнопку “Отправить”, вы принимаете наши Политику Конфиденциальности и даете согласие на обработку персональных данных.

      Это бесплатно и ни к чему вас не обязывает